Eine Arztpraxis in Karlsbad sieht sich mit dem Umstand konfrontiert, dass die Baugenehmigungspläne aus dem Jahr 1970 nicht mehr mit dem aktuellen Zustand der Immobilie übereinstimmen.
Laserscan im Außenbereich - Fassaden und Straßenräume
Laserscan im Innenbereich - Innenräume, Wandabwicklungen, Details, Raumflächen, Baus, Möblierung
Laserscan Tiefgarage - 3D Abbildung der Stellplätzen in der Tiefgarage, Flächen, Höhen, Wandabwicklung, Statik

Karte mit den einzelnen Scans und mit den 360 Grad Panoramafotos
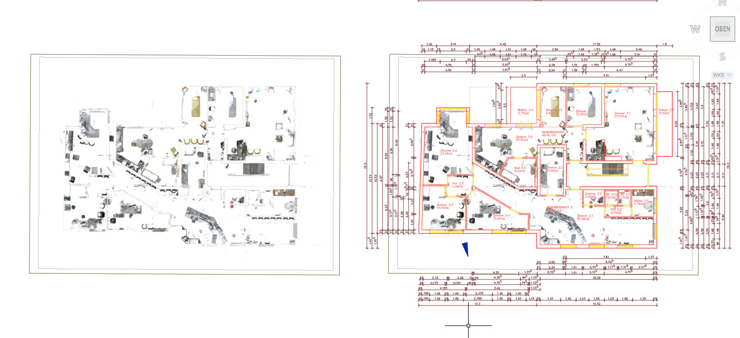
Durch die Weiterverarbeitung dieser Punktwolke konnten die Grundrisse der Praxis im 1. Obergeschoss und im Untergeschoss mit Stellplätzen als .pdf-Dokumente generiert werden.
Orthografische Abbildungen der Punktwolke in Form von Fassadenansichten, Grundrissen und Schnitten ermöglichen die Erstellung von .pdf-Dateien im gewünschten Maßstab. Diese dienen als Grundlage für die technischen Zeichnungen in CAD-Software, aus denen schließlich die .dwg-Zeichnungen entstehen. Die Bestandsaufnahme bildet somit die Grundlage für den notariellen Kauf- oder Verkaufsprozess einer Immobilie, insbesondere wenn die alten Pläne, beispielsweise aus der Baugenehmigung, nicht mehr dem aktuellen Stand der Immobilie entsprechen.


Die Orthofotos in gewünschten Maßstab integrieren sich mit der CAD Software
Hier sind die einzelnen Schritte des Projekts:
- Kontaktaufnahme: Der Bauherr nimmt Kontakt mit dem Architekten auf und möchte, dass die Immobilie vor dem Kauf überprüft wird. In einem Erstgespräch wird die Aufgabenstellung mit dem Architekten besprochen.
- Angebotserstellung: ARCHITEKTUR LASERSCAN erstellt dann unmittelbar ein Angebot für eine 3D-Bestandsaufnahme mit FARO, welche zur Erstellung der aktuellen Bestandspläne der Immobilie dient.
- Vor-Ort-Termin: Bei einem Vor-Ort-Termin werden schließlich Aufnahmen mit dem 3D-Laserscanner FARO Premium durchgeführt.
- Datenprozessierung: Die etwa 100 einzelnen Scans Aufnahmen vor Ort, sowohl innen als auch außen, werden zu einem einzigen Datensatz zusammengeführt, wodurch eine Punktwolke entsteht. Diese kann aus verschiedenen Blickwinkeln betrachtet werden, und jedes 360-Grad-Panorama ist am Bildschirm einsehbar. Eine Karte zeigt präzise die Position der 360-Grad-Panoramen.
- Weiterverarbeitung: Mithilfe von Orthofotos werden Ansichten, Schnitte und Grundrisse aus der Punktwolke erstellt, die als .pdf-Dateien dienen. Diese bilden die Grundlage für die Erstellung von .dwg-Zeichnungen und Architekturbestandsplänen der Immobilie.




